Terreno edificabile In Vendita a Menaggio

Menaggio - N. Sauro, 1
1.300.000 €
Codice:32090296
Caratteristiche principali
12360
Descrizione
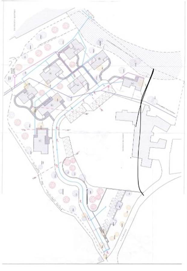
MENAGGIO - LAGO DI COMO - TERRENO CON PROGETTO EDILIZIO APPROVATO
Il terreno è sito nel Comune di Menaggio, frazione di Loveno, e ad esso si accede da via Nazario Sauro angolo via Burgatto.
Il Comune di Menaggio, a seguito del pagamento degli oneri di urbanizzazione e di costruzione per
€ 63.558, 22, in data 2 dicembre 2008, ha rilasciato su detto terreno il Permesso di Costruire
n. 3400 per la realizzazione di fabbricati residenziali con un volume totale in progetto di mc. 5.573.
Il progetto prevede la costruzione di otto edifici, divisi, al loro interno, in più appartamenti di superficie diversa.
Il P. G. T. di Menaggio, approvato con deliberazione del Consiglio Comunale n. 21 del 18. /06/2013, ha classificato il terreno in ambito “Area Speciale – AS 3 Bel faggio ”, che prevede l’edificabilità secondo il Permesso di Costruire rilasciato.
Caratteristiche
Codice:
32090296
Città:
Menaggio
Categoria:
Terreno edificabile
Locali:
1
Mq:
12360
Classe energetica:
Non applicabile
Mappa
Menaggio - N. Sauro, 1
Attiva i cookies e ricarica la pagina per visualizzare il contenuto
Planimetrie
Condividi su
Cookie preference